Bei Abschluss eines Kaufvertrages wird eine Vermittlungs-/ Nachweisprovision in Höhe von 3,57 % inklusive 19 % Mehrwertsteuer auf den Kaufpreis vom Käufer fällig.
Innenprovision:3,57 inkl. MwSt.
Außenprovision:3,57 inkl. MwSt.
MwSt. Satz:19%
Garagenstellplätze:2
Objektdetails
Basisdaten
Objektart:Immobilie
Objekttyp:Haus
Haustyp:Einfamilienhaus
Vermarktungsart:Kauf
Nutzungsart:Wohnen
Status:-
Verfügbar ab:Verfügbar nach Vereinbarung
Flächen
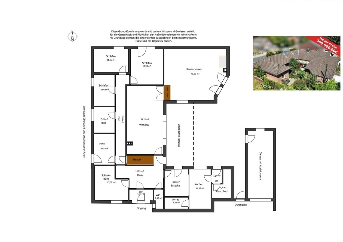
Wohnfläche:195 m²
Grundstücksfläche:810 m²
Nutzfläche:78 m²
Zimmer:10
Schlafzimmer:4
Badezimmer:2
Separate WCs:2
Kellerfläche:34 m²
Zustand & Baujahr
Baujahr:1963
Zustand:Gepflegt
Ausstattungskategorie:Standard
Heizung & Energie
Heizungsart:Zentralheizung
Energieträger:Gas
Primärenergie:Gas
Lage
Ort: 26441 Jever
Ortsteil: Rahrdum
Bundesland: Niedersachsen
Lagegebiet: Wohngebiet
Detaillierte Informationen
Objektbeschreibung
Dieses Wohnhaus in Jever bietet weit mehr als eine klassische Bestandsimmobilie.
Hier entsteht ein flexibles Wohnkonzept mit klarer Struktur – ideal für Wohnen & Arbeiten unter einem Dach oder als Zwei-Generationenhaus.
Mit ca. 175 m² Wohnfläche, plus ca. 20 m² Fläche im Dachgeschoß (2 Räume, 1 WC), zwei Garagen, Teilkeller und einem geschützten Innenhof bildet die Immobilie eine solide Grundlage für individuelle Gestaltung und moderne Raumaufteilung.
Der geschützte Innenhof – privater Rückzugsort
Ein besonderes Highlight ist der innenliegende, geschützte Hofbereich.
Hier genießen Sie Privatsphäre, Ruhe und vielseitige Nutzungsmöglichkeiten.
Ob als Lounge-Bereich, Sommeressplatz, geschützter Spielbereich oder entspannter Rückzugsort nach einem Arbeitstag – dieser Innenhof schafft eine Wohnqualität, die man in klassischen Grundrissen selten findet.
Gerade in Verbindung mit dem neuen Raumkonzept entsteht eine harmonische Verbindung von Innen- und Außenbereich.
Das neue Raumkonzept – bereits ausgearbeitet
Für die Immobilie liegt ein durchdachter Alternativgrundriss vor, der mit überschaubarem Aufwand realisierbar ist.
Das Konzept sieht unter anderem vor:
• Öffnung des Wohnbereichs zu einer großzügigen Wohn-Diele
• Entfernung des langen Flures zugunsten einer modernen, offenen Struktur
• Separates Büro direkt am Eingangsbereich
• Vergrößerung des Badezimmers für mehr Komfort
• Zwei ruhige Schlafzimmer im hinteren Bereich
• Nutzung des Kaminzimmers als eigenständiges Wohnzimmer
So entsteht eine klare funktionale Trennung zwischen Arbeiten, Wohnen und Rückzugsbereich – strukturiert und zeitgemäß.
Wohnen & Arbeiten unter einem Dach
Das separat erreichbare Büro im Eingangsbereich ermöglicht eine professionelle Kombination aus privatem Wohnen und beruflicher Nutzung.
Ideal für:
• Selbstständige
• Beratende Tätigkeiten
• Homeoffice
• Praxis- oder Ateliernutzung
Mandanten oder Kunden betreten den Arbeitsbereich, ohne den privaten Wohnraum zu durchqueren – ein erheblicher Vorteil im Alltag.
Zwei-Generationen-Wohnen möglich
Alternativ bietet die Struktur die Möglichkeit, Wohnbereiche funktional voneinander zu trennen.
Die Raumaufteilung eignet sich hervorragend für:
• Eltern & erwachsene Kinder
• Mehrgenerationenwohnen
• gemeinsames Wohnen mit klarer Privatsphäre
Die Flexibilität des Grundrisses eröffnet hier verschiedene Nutzungsperspektiven.
Substanz & Modernisierungen
• Baujahr: 1963
• Anbau: 1983
• Wohnfläche: ca. 175 m²
• zusätzliche Fläche im Obergeschoss
• Teilkeller
• 2 Garagen
• Heizung erneuert 2020
• teilweise Fenster und Tür erneuert 2022–2023
Die vorhandene Substanz bildet eine solide Basis für individuelle Modernisierung nach eigenen Vorstellungen.
Investition mit Perspektive
Die Umsetzung des Alternativgrundrisses ist – je nach Ausführung – mit einem geschätzten Investitionsrahmen von ca. 40.000–60.000 € realisierbar.
Damit entsteht ein modernes, strukturiertes Wohnkonzept zu einer Gesamtinvestition, die deutlich unter vergleichbaren Neubaukosten liegt.
Gerade für Käufer, die nicht ein Standardhaus suchen, sondern Gestaltungsspielraum schätzen, eröffnet sich hier eine attraktive Perspektive.
Überzeugen Sie sich von der Besonderheit dieser außergewöhnlichen Immobilie und fordern Sie unser Exposé mit weiteren Unterlagen an. Gerne können wir bei Interesse einen Besichtigungstermin vereinbaren.
Sonstige Angaben
Besichtigungen sind nur nach vorheriger Absprache möglich. Wegen des Schutzes der Privatsphäre bitten wir um Ihr Verständnis das Grundstück nicht, ohne einen Termin zu betreten. Nehmen Sie zuvor immer Kontakt zu uns auf.
Bei Abschluss eines Kaufvertrages wird eine Vermittlungs-/ Nachweisprovision in Höhe von 3,57 % inklusive 19 % Mehrwertsteuer auf den Kaufpreis vom Käufer fällig.